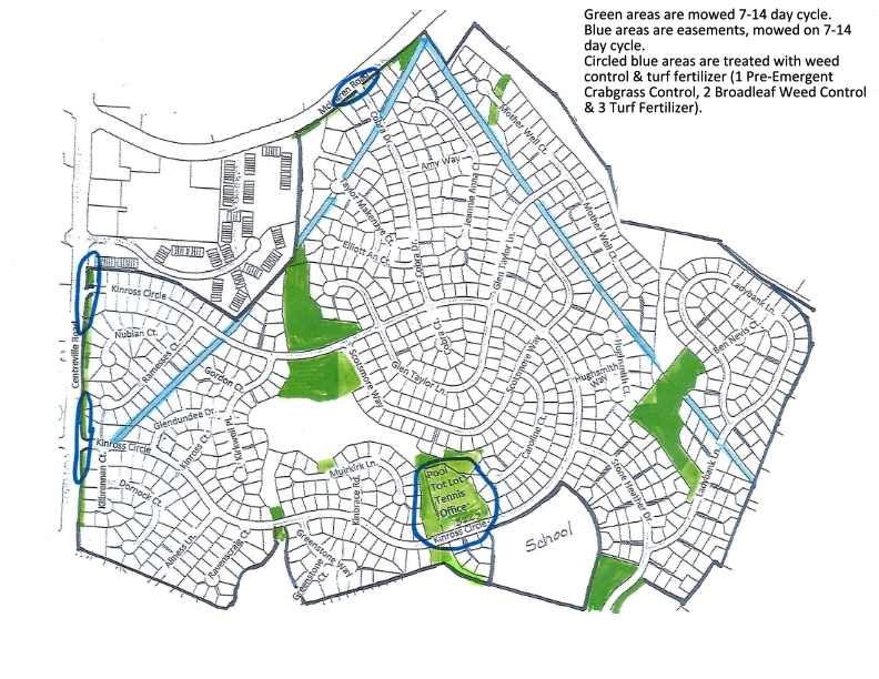
Refer to this service map for the common areas which are maintained by the landscaping company. When contacting us with a concern, include pictures when possible.

Refer to this service map for the common areas which are maintained by the landscaping company. When contacting us with a concern, include pictures when possible.
